Izmeštanje benziske pumpe Lukoil-a iz Ulice Petefi Šandora
16.12.2011. u 14:55h
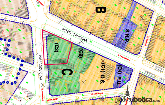
Na mesto bivše zgrade "Komgrada", čije rušenje je u toku, biće izmeštena benzinska pumpa iz ulice Šandora Petefija. Lokaciju "Komgrada" za potrebe "Lukoila" otkupila je firma "Roha", a razlog za premeštanje je zastarelost sadašnje benzinske pumpe, pa će umesto renoviranja biti izgrađena nova.
Ujedno je Planom detaljne regulacije za ovaj deo grada predviđeno da strana Preradovićeve ulice prema centru dobije komercijalne sadržaje i manje uslužne delatnosti, dok će druga strana i blok do Gajeve ulice biti namenjen za porodično stanovanje srednje gustine.
Ujedno je Planom detaljne regulacije za ovaj deo grada predviđeno da strana Preradovićeve ulice prema centru dobije komercijalne sadržaje i manje uslužne delatnosti, dok će druga strana i blok do Gajeve ulice biti namenjen za porodično stanovanje srednje gustine.

Izvor:
Radio Subotica
Postavljeno pre 14 godina i 3 meseca
Povezane teme
Komentara
0
Napiši komentar
Mišljenja iznešena u komentarima su privatno mišljenje autora komentara i ne odražavaju stavove ovog Internet portala. Komentari su moderirani i odobravani u skladu sa opštim pravilima i uslovima.