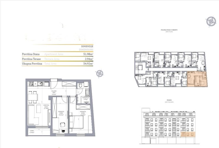
stan, Tolstojeva, 54m2

102.700 €
Postavljeno 06.04.2026.

Tip nekretnine: Stan

Površina: 54m2

Lokacija: Centar 2

Broj soba: 3

Spratnost: 1. sprat

OPIS NEKRETNINE:

Stan u novogradnji površine 54,92 m2 koji se sastoji od dnevnog boravka sa kuhinjom i trpezarijom, dve spavaće sobe,kupatila. Stan će imati podno grejanje koje se ističe niskim troškovima grejanja na prirodni gas, kvalitetnu aluminjumsku stolariju sa troslojnim niskoemisionim staklom i PVC roletnom. Zidovi su izgrađeni od termoblokova najviših izolacijskih svojstava + fasadna izolacija.Pregradni zidovi izgrađeni su od opeke. Na podovima će biti tarket podne obloge u sobama i trpezariji, a keramika I klase u kupatilima i kuhinji. U kupatilu tuš paravani od kaljenog stakla i linijski slivnici i ugradni vodokotlići. Stan će imati sigurnosna ulazna vrata,optički priključak,interfon iinstalacije za klimu. Završetak radova kraj 2027. godine.

Prikazivanje kontakt podataka
Više detalja na sajtu našeg partnera 4zida.rs