Stan, Ugao Kumičićeve i Matije Gubca, 36m2 (ID: 98510) | Nekretnine Subotica

56.746 €
Postavljeno 17.11.2025.

- Tip nekretnine: Stan

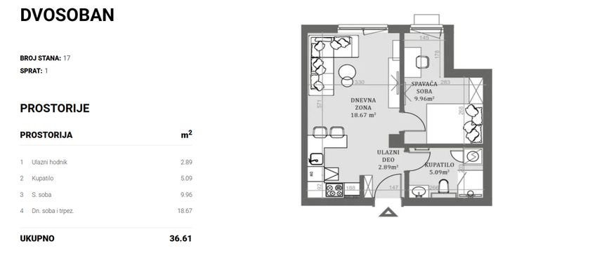
- Površina: 36m2

- Lokacija: Prozivka

- Broj soba: 2

- Spratnost: 1. sprat

OPIS NEKRETNINE:

Stan u novogradnji površine 36,61m2 koji se sastoji od dnevnog boravka sa kuhinjom i trpezarijom, kupatla, spavaće sobe i terase.Zgrada je građena od termoblokova najviših izolacijskih svojstava+fasadna izolacija.Pregradni zidovi će biti izgrađeni od opeke. Tarket podne obloge u sobama i trpezariji a u kuhinji I kupatilu I klasa keramike i tuš paravan od kaljenog stakla, linijski slivnik i ugradni vodokotlić. Stan će imati sigurnosna vrata, optički priključak, interfon i instalacije za klimu. Rok završetka poslednji kvartal 2026.godine.

Prikazivanje kontakt podataka

Više detalja na sajtu našeg partnera

FOTOGRAFIJE NEKRETNINE:

Stan, Ugao Kumičićeve i Matije Gubca, 36m2 (ID: 98510) | Nekretnine Subotica
Postavljeno 17.11.2025.