Stan, Ugao Kumičićeve i Matije Gubca, 55m2 (ID: 96610) | Nekretnine Subotica

83.085 €
Postavljeno 08.11.2025.

- Tip nekretnine: Stan

- Površina: 55m2

- Lokacija: Prozivka

- Broj soba: 3

- Spratnost: 3. sprat

OPIS NEKRETNINE:

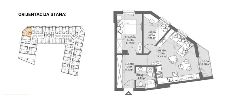
Stan u novogradnji površine 55,39m2 koji se sastoji od dnevnog boravka sa kuhinjom i trpezarijom, dve spavaće sobe,kupatila. Stan će imati podno grejanje koje se ističe niskim troškovima grejanja na prirodni gas, kvalitetnu PVC stolariju sa troslojnim niskoemisionim staklom i PVC roletnom. Zidovi su izgrađeni od termoblokova najviših izolacijskih svojstava + fasadna izolacija.Pregradni zidovi izgrađeni su od opeke. Na podovima će biti tarket podne obloge u sobama i trpezariji, a keramika I klase u kupatilima i kuhinji. U kupatilu tuš paravani od kaljenog stakla i linijski slivnici i ugradni vodokotlići. Stan će imati sigurnosna ulazna vrata,optički priključak,interfon iinstalacije za klimu. Završetak radova kraj 2027. godine.

Prikazivanje kontakt podataka

Više detalja na sajtu našeg partnera

FOTOGRAFIJE NEKRETNINE:

Stan, Ugao Kumičićeve i Matije Gubca, 55m2 (ID: 96610) | Nekretnine Subotica
Postavljeno 08.11.2025.