Stan, Centar 1, 61m2 (ID: 100709) | Nekretnine Subotica

136.092 €
Postavljeno 28.11.2025.

- Tip nekretnine: Stan

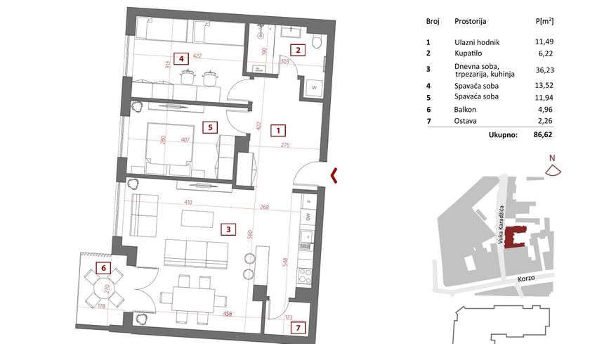
- Površina: 61m2

- Lokacija: Centar 1

- Broj soba: 2

- Spratnost: 1. sprat

OPIS NEKRETNINE:

Subotica, Centar I, u samom centru grada na samo 50m od Korzoa gradi se smart zgrada sa šest spratova u kojoj se prodaju stanovi različitih struktura (dvosoban, trosoban, četvorosoban). Stolarija je drvo-aluminijum sa trostrukim staklom sa komarnicima i roletnama na elektromotore, zvučna izolacija vrhunskog kvaliteta, na podovima italijanska granitna keramika, grejanje je podno na gas, stanovi poseduju inverter klime. Zgrada će posedovati energetski pasoš A kategorije. Cena 1m² iznosi 2.200 evra sa PDV-om, a postoji mogućnost povrata PDV-a. Rok završetka izgradnje je previđen za jun 2025. godine.

Prikazivanje kontakt podataka

Više detalja na sajtu našeg partnera

FOTOGRAFIJE NEKRETNINE:

Stan, Centar 1, 61m2 (ID: 100709) | Nekretnine Subotica
Postavljeno 28.11.2025.