Kuća, Vlade Ćetkovića, 320m2 (ID: 112643) | Nekretnine Subotica

290.000 €
Postavljeno 06.02.2026.

- Tip nekretnine: Kuća

- Površina: 320m2

- Lokacija: Mišićevo

- Broj soba: 5

OPIS NEKRETNINE:

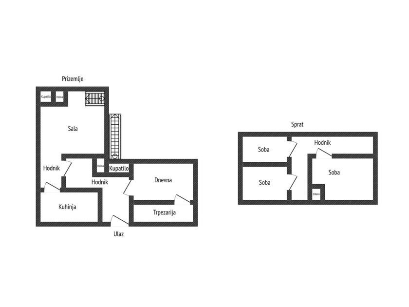
**Na prodaju prostrana kuća na odličnoj lokaciji – Mišićevo, 14 km od centra Subotice** Lokacija: Na glavnom putu, selo Mišićevo – samo 14 km od centra Subotice, 10 km od auto-puta, 2 km od jezera, sa sopstvenim molom. Odličan, redovno održavan put, mirna i prirodom okružena lokacija. Objekat i plac: Površina kuće: 320 m² Plac: 7.450 m² (deo zemljišta građevinsko) Godina gradnje: 2010. Spratnost: Dva nivoa Struktura: 3 spavaće sobe, dnevna soba, kuhinja, trpezarija, 2 kupatila, pomoćne prostorije, sala Sala od 80 m² sa zasebnim ulazom (keramičke pločice, podno grejanje), idealna za ugostiteljske delatnosti. Manji voćnjak u dvorištu Status: Uknjižen 1/1, bez tereta i zabeležbi Grejanje: Kotao na čvrsto gorivo Podno grejanje na struju Infrastruktura: Gradska voda Trofazna struja Kvalitetna termoizolacija PVC stolarija Bakarni oluci Potencijalne namene: Zbog svoje pozicije i funkcionalnosti objekat je idealan za: Etno turizam Ugostiteljsku delatnost Vinariju Predstavništvo firme Manju proizvodnju Odmah useljiva kuća, u odličnom i održavanom stanju. Moguća zamena za: Veći stan ili više manjih stanova (u Subotici, Novom Sadu ili Beogradu). **На продажу просторный дом в отличном месте — Мишичево, 14 км от центра Суботицы** Местоположение: На главной дороге, село Мишичево — всего 14 км от центра Суботицы, 10 км от автострады и 2 км от озера с собственным причалом. Отличная, регулярно обслуживаемая дорога. Тихое место, окружённое природой. Объект: Площадь дома: 320 м² Площадь участка: 7.450 м² (часть земли — строительная) Год постройки: 2010 Этажность: 2 уровня Планировка: 3 спальни, гостиная, кухня, столовая, 2 ванные комнаты, подсобные помещения, зал Отдельный зал площадью 80 м² с отдельным входом (керамическая плитка, тёплый пол) — идеально подходит для ресторанного бизнеса. Во дворе расположен небольшой фруктовый сад. Статус: Зарегистрирован 1/1, без обременений и записей Отопление: Котёл на твёрдом топливе Электрическое тёплое поле Инфраструктура: Городская вода Трёхфазное электричество Качественная теплоизоляция ПВХ-столярка Медные водостоки Потенциальное использование: Благодаря своему расположению и функциональности объект идеально подходит для: Этно-туризма Ресторанного бизнеса Винодельни Дома престарелых Офиса или представительского помещения Небольшого производства Дом в отличном и ухоженном состоянии, готов к заселению. Возможен обмен на: Более крупную квартиру или несколько меньших квартир (в Суботице, Новом Саде или Белграде) ID 11990611 ETAGI SERBIA: Posrednička naknada je u skladu sa Opštim uslovima poslovanja posrednika kompanije "Etagi com" d.o.o.

Prikazivanje kontakt podataka

Više detalja na sajtu našeg partnera

FOTOGRAFIJE NEKRETNINE:

Kuća, Vlade Ćetkovića, 320m2 (ID: 112643) | Nekretnine Subotica
Postavljeno 06.02.2026.