Kuća, Palić, 170m2 (ID: 109546) | Nekretnine Subotica

230.000 €
Postavljeno 09.01.2026.

- Tip nekretnine: Kuća

- Površina: 170m2

- Lokacija: Palić

- Broj soba: 5

OPIS NEKRETNINE:

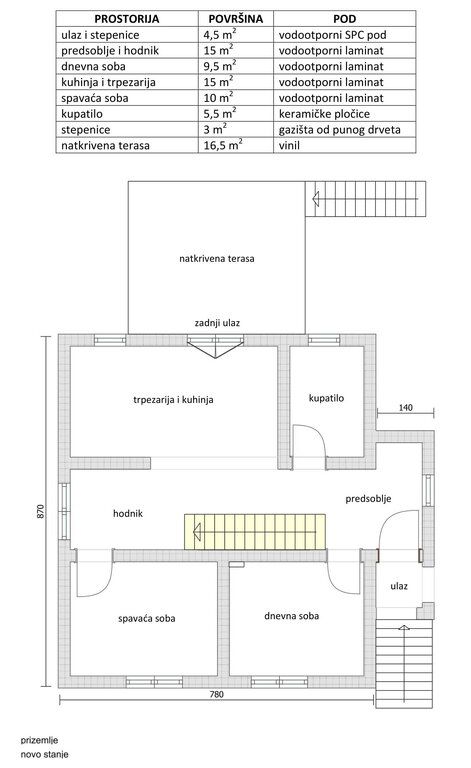
Potpuno renovirana porodična kuća od 170 m2. Nova unutrašnja vodovodna i kanalizaciona mreža, električni vodovi i instalacije, moderan gasni sistem centralnog grejanja i snabdevanja toplom vodom. Novi PVC prozori i vrata, automatska garažna vrata, toplotna izolacija krova i zidova. Na podovima su pločice i laminat. Pored toga, instalirana je i bezbednosna mreža, upravljanje ulazom, kamere i alarmni sistem. Suteren ima garažu i radnu sobu, kao i prostranu vešernicu, koja je istovremeno i garderober, sa zadnjim vratima prema bašti. Na visokom prizemlju nalazi se sve za svakodnevni život, uključujući dnevnu sobu, spavaću sobu, kupatilo sa tušem, kao i kuhinju i trpezariju, sa direktnim pristupom natkrivenoj terasi. U potkrovlju se nalaze dve spavaće sobe, kao i udobno kupatilo sa kadom, a ova prostorija je takođe obogaćena prostorom za odlaganje stvari.Kuća se prodaje sa opremljenom kuhinjom, ugradnim aparatima (frižider, zamrzivač, mašina za pranje sudova, ploča za kuvanje, rerna, aspirator), velikom komodom sa radnom pločom, kao i snežno beli nameštaj u dečijoj sobi. Mirno okruženje, odličan pristup turističkom delu Palića (20 minuta hoda), a centru Palića 15 minuta hoda.

Prikazivanje kontakt podataka

Više detalja na sajtu našeg partnera

FOTOGRAFIJE NEKRETNINE:

Kuća, Palić, 170m2 (ID: 109546) | Nekretnine Subotica
Postavljeno 09.01.2026.