Stan, Tolstojeva, 29m2 (ID: 115315) | Nekretnine Subotica

53.046 €
Postavljeno 27.02.2026.

- Tip nekretnine: Stan

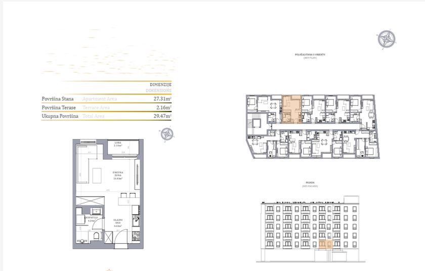
- Površina: 29m2

- Lokacija: Centar 2

- Broj soba: 1

- Spratnost: 1. sprat

OPIS NEKRETNINE:

Stan u novogradnji površine 29.47m2 koji se sastoji od dnevnog boravka sa kuhinjom i trpezarijom i kupatila. Stan će imati podno grejanje koje se ističe niskim troškovima grejanja na prirodni gas, kvalitetnu aluminijumsku stolariju sa troslojnim niskoemisionim staklom i PVC roletnom. Zidovi su izgrađeni od termoblokova najviših izolacijskih svojstava + fasadna izolacija.Pregradni zidovi izgrađeni su od opeke. Na podovima će biti tarket podne obloge u sobama i trpezariji, a keramika I klase u kupatilima i kuhinji. U kupatilu tuš paravani od kaljenog stakla i linijski slivnici i ugradni vodokotlići. Stan će imati sigurnosna ulazna vrata,optički priključak,interfon iinstalacije za klimu. Završetak radova kraj 2027. godine.

Prikazivanje kontakt podataka

Više detalja na sajtu našeg partnera

FOTOGRAFIJE NEKRETNINE:

Stan, Tolstojeva, 29m2 (ID: 115315) | Nekretnine Subotica
Postavljeno 27.02.2026.